聯系人:王經理
銷售電話:15610293837
銷售QQ:2962700085
公司地址:山東省濰坊高新區新城街道玉清社區光電路155號濰坊高新區光電產業加速器(一期)1號樓301

PRODUCT CENTER
聯系人:王經理
銷售電話:15610293837
銷售QQ:2962700085
公司地址:山東省濰坊高新區新城街道玉清社區光電路155號濰坊高新區光電產業加速器(一期)1號樓301
校園自動氣象站又稱校園氣象站,校園氣象觀測站,校園自動氣象站是為了滿足氣象科普教育示范服務的需求,所設計研發的一套數字化氣象綜合服務平臺,主要用于教學,能自動采集校園環境氣象數據,讓學生重視氣候環境。
一、校園自動氣象站產品簡介 
校園自動氣象站又稱校園氣象站,校園氣象觀測站,校園自動氣象站是為了滿足氣象科普教育示范服務的需求,所設計研發的一套數字化氣象綜合服務平臺,主要用于教學,能自動采集校園環境氣象數據,讓學生重視氣候環境。
WX-CQ11小型自動氣象站(具備省級CMA證書)是一款多功能于一體、低功耗、可快速安裝、便于野外監測使用的高精度氣象觀測設備。
該設備由氣象傳感器,采集器,太陽能供電系統,立桿支架,云平臺五部分組成。免調試,可快速布置,廣泛運用于氣象、農業、林業、環保、海洋、機場、港口、科學考察、校園教育等領域。
二、產品特點
1、低功耗采集器:靜態功耗小于50uA
2、標配GPRS聯網、支持擴展藍牙、有線傳輸
3、7寸安卓觸屏,版本:4.4.2、四核Cortex?-A7,512M/4G
4、支持modbus485傳感器擴展
5、太陽能充電管理MPPT自動功率點跟蹤
6、三米碳鋼支架,兩節法蘭盤對接
7、短信報警,超限后向指定的手機上發送短信
8、ABS材質防護箱,耐腐蝕、抗氧化,防水等級IP66
三、技術參數
1)采集器供電接口:GX-12-3P插頭,輸入電壓5V,帶RS232輸出Json數據格式,采集器供電:DC5V±0.5V峰值電流1A,
2)傳感器modbus、485接口:GX-12-4P插頭,輸出供電電壓12V/1A,設備配置接口:GX-12-4P插頭,輸入電壓5V
3)太陽能供電、配置鉛酸電池,可選配30W 20AH/50W 40AH/100W 100AH.充電控制器:150W,MPPT自動功率點跟蹤,效率提高20%
4)數據上傳間隔:1分鐘-1000分鐘可調
5)7寸安卓觸屏,屏幕尺寸:1024*600 RGB LCD
6)部分傳感器參數
名 稱  | 測量范圍  | 分 辨 率  | 準 確 度  | 
環境溫度  | -40~+60℃  | 0.1℃  | ±0.3℃  | 
相對濕度  | 0~100%RH  | 0.1%  | ±2%  | 
光照強度  | 0-200000Lux  | 1Lux  | ±2%  | 
大氣壓力  | 300~1100KPa  | 0.1KPa  | ±0.3hPa  | 
露點溫度  | -20~+50℃  | 0.1℃  | ±0.5℃  | 
土壤溫度  | -50~+80℃  | 0.1℃  | ≤±0.2℃  | 
土壤濕度  | 0~100%  | 0.1%  | ±2%  | 
土壤鹽分  | 0-20ms  | ±0.1ms  | ±2%  | 
土壤PH  | 0-14  | 0.1  | ±0.2%  | 
風 向  | 0~360°(16方向)  | 1/16  | <3°(>1.0m/s)  | 
風 速  | 0~70m/s  | 0.1m/s  | ±(0.3+0.03V)m/s  | 
雨 量  | ≦4mm/min  | 0.01mm  | ±0.2mm  | 
紫外輻射  | 0~70W/㎡  | 1W/㎡  | ±2% W/㎡  | 
日照時數  | 0~24h  | 0.1 h  | ±2%h  | 
總輻射  | 0-2000W/m2  | 0.1W/m2  | 光譜范圍:300-3000nm  | 
光合有效輻射  | 400~700nm  | 靈 敏 度:10~50μv/μmol·m-2·s-1  | |
  
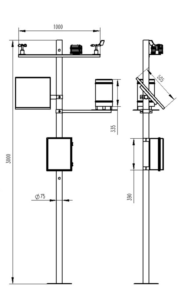
四、產品尺寸圖
  
五、產品結構圖
  
六、上位機軟件介紹
1、PC單機版數據接收、存儲、查看、分析軟件
2、支持串口數據接收、處理、展示
3、支持json字符串、modbus485等通信方式
4、可自設置存儲時間,modbus485采集模式下可自設置采集時間
5、支持自助增加、刪除、修改監測參數的協議、名稱、圖標等
6、支持數據后處理功能
7、支持外置運行javascript腳本
七、安卓APP介紹
1、安卓單機版數據接收、存儲、查看、分析軟件
2、支持藍牙數據接收
3、手機休眠后軟件后臺接收、處理
4、json數據自動添加設備,modbus設備支持掃碼添加設備
5、支持歷史數據查看、分析、導出表格,支持曲線展示、單數據點查看。
6、支持數據后處理功能
7、支持外置運行javascript腳本
八、云平臺介紹
1、CS架構軟件平臺,支持手機、PC瀏覽器直接觀測、無需額外安裝軟件。
2、支持多帳號、多設備登錄
3、支持實時數據展示與歷史數據展示儀表板
4、云服務器、云數據存儲,穩定可靠,易于擴展,負載均衡。
5、支持短信報警及閾值設置
6、支持地圖顯示、查看設備信息。
7、支持數據曲線分析
8、支持數據導出表格形式
9、支持數據轉發,HJ-212協議,TCP轉發,http協議等。
10、支持數據后處理功能
11、支持外置運行javascript腳本
WX-NQ14氣象墑情監測站是一種集氣象觀測、土壤墑情監測于一體的智能化設備。它不僅能夠實時監測農田的氣溫、濕度、風速等氣象數據,還能精準測量土壤的水分含量、溫度等墑情信息。這些數據通過無線傳輸技術實時上傳至云端平臺,為農田管理者提供了決策支持。在農田管理中,氣象墑情監測站的應用優勢顯而易見。它能夠幫助管理者及時了解農田的氣象和土壤墑情狀況···
想象一下,當你站在城市的高樓之巔,眺望遠方,視線能穿透薄霧,清晰捕捉到數十公里外的景致。這種能力,正是WX-NJD1010km能見度監測站賦予我們的“超能力”。它們不僅僅是一個簡單的觀測點,而是集高精度傳感器、智能分析系統于一體的現代氣象監測設備。通過激光散射、圖像識別等先進技術,這些監測站能夠實時捕捉并分析大氣中的顆粒物濃度、濕度、溫度等多維度數據,進而精準計算出當前及未來一段時間的能見度情況。···
WX-WY1 GNSS邊坡監測系統是一種基于全球導航衛星系統技術的邊坡穩定性監測解決方案。它通過在邊坡關鍵位置安裝GNSS接收器,實時接收衛星信號,并計算接收器的三維坐標,從而實現對邊坡位移的精確監測。GNSS邊坡監測系統具備多項強大功能,確保邊坡安全的全面守護。首先,它能夠實時監測邊坡的微小位移,通過連續觀測,及時發現邊坡的變形趨勢。···
WX-SW3水文監測站,作為現代水利監測體系的重要組成部分,其核心價值在于能夠實時、準確地獲取水文數據。這些數據,雖然我們不具體展開流速、流量、水位、雨量等參數的細節,但可以想象,它們共同構成了對水域狀況全面而深入的了解。通過這些數據,我們可以掌握水域的動態變化,預測可能發生的水文事件,從而采取有效的應對措施。···
WX-SW2河流水位雨量監測系統是一種基于先進雷達技術的全自動水文在線監測系統。它集成了高精度的雷達傳感器、數據采集與傳輸技術,以及強大的數據處理和分析能力。這些高精度的傳感器能夠非接觸式地測量水位和雨量,不受水面漂浮物、泥沙等因素的影響,確保了數據的準確性和可靠性。同時,系統還具備全天候、不間斷的監測能力,能夠實時掌握水位和雨量的變化情況。···
WX-WQX9九要素多功能微氣象傳感器集成了空氣溫度、空氣濕度、風速、風向、大氣壓力、光學雨量、總輻射、PM2.5、PM10九大關鍵氣象參數的監測功能于一體。這不僅僅是一次技術的簡單堆砌,而是對氣象監測精度與全面性的深刻理解和創新實踐。通過高精度的傳感器技術和先進的算法模型,它能夠實現對環境氣候的全方位、實時、精準監測,為用戶提供最為準確的氣象數據支持。···